Lake

Apbūves laukums 25m²
Dzīvojamā platība 27,6m²

cena 30’500€+PVN

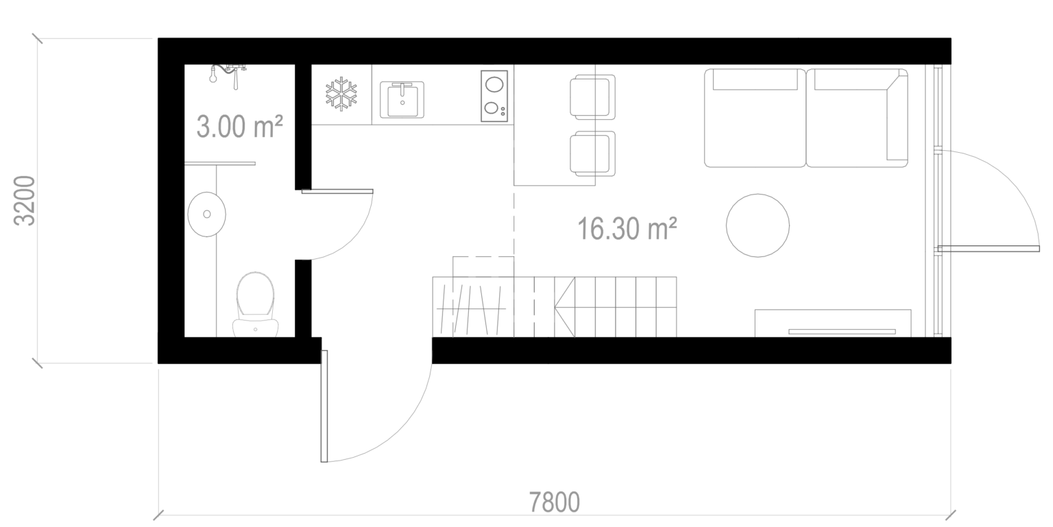
Šī kompaktā divlīmeņu māja ar kopējo platību 25m² ir ideāli piemērota tiem, kas meklē modernu un ērtu dzīvesvietu nelielā platībā. Mājai ir rūpīgi izstrādāts plāns, kas nodrošina ērtu pārvietošanos starp telpām un maksimālu dzīvojamās platības izmantošanu. Pirmais stāvs piedāvā atvērtu dzīvojamo zonu ar virtuvi, kā arī vannas istabu. Antresola līmenī ir papildu dzīvojamā zona, kas piemērota guļamistabai vai darbistabai.

Detalizēts mājas apraksts

Priekšrocības

Mājas Plānojums

Pirmais stāvs:
Antresola līmenis:
Pirmais stāvs
Antresola līmenis:

Kas ietilpst cenā?

Pamati un pamatu plātne

  • Siltināta pamatu plātne ar izbūvētām inženierkomunikācijām

Ēkas sienas un jumts

  • Ārsienu siltinājums: 320 mm siltumizolācija
  • Jumta siltinājums: 400 mm minerālvate

Fasāde

  • Krāsota dēļu apdare, izturīga un estētiska

Logi un durvis

  • 3 pakešu PVC logi ar augstu energoefektivitāti (Uw 0.8)
  • PVC Ārdurvis ar augstu energoefektivitāti

Apkure un ventilācija

  • Apkure: gaiss-gaiss siltumsūknis
  • Gudra un efektīva sienas ventilācija ar siltuma atgūšanu

Iekšējā apdare

  • Pilnībā pabeigta iekšējā apdare
  • Santehnika: vanna, dušas sistēmas, maisītāji, izlietnes
  • Iekšējā elektroinstalācija ar slēdžiem un rozetēm
  • Sienas: krāsota GKB plātne (krāsa pēc klienta izvēles)
  • Vannas istabas flīzētas
  • Griesti: krāsota GKB plātne (krāsa pēc klienta izvēles)
  • Grīdas segums: augstas kvalitātes lamināts (klase 33)

Papildu iespējas

*Ir iespēja mainīt apdares materiālus, to saskaņojot atsevišķi pirms līguma noslēgšanas.

Papildu izmaksas, ar kurām jārēķinās

Par būvprojekta saskaņošanu un mājas būvniecību parūpēsimies Mēs, Tev un Tavai ģimenei jāizvēlas tikai apdares materiālu krāsas.

1. Būvprojekta piesaiste zemesgabalam un saskaņošana Būvvaldē

  • Izmaksas: aptuveni 3000 EUR
  • Ietver: būvprojektu, ģeoloģiju un topogrāfiju

2. Ārējās inženierkomunikācijas

  • Izmaksas: aptuveni 5000 EUR
  • Ietver: elektrības, ūdens un kanalizācijas pieslēgumus

3. Zemes gabala labiekārtošana

  • Izmaksas: aptuveni 4000 EUR
  • Ietver: bruģēšanu, žoga uzstādīšanu un zālāja ierīkošanu

4. Mēbeles un sadzīves tehnika

  • Virtuves iekārta ietilpst mājas piedāvājumā
  • Izmaksas: atkarīgas no izvēlētajām mēbelēm un tehnikas

Mājas iegādes process

Vienošanās

Vienojamies par apdares materiāliem, krāsām un parakstām līgumu

01

Būvatļauja

Būvatļaujas apstiprināšanas process (līdz 2 mēnešiem) Pamatu izbūve un mājas konstrukciju izgatavošana (1 mēnesis)

02

Montāža

Mājas montāžas un apdares darbi (2 mēneši)

03

Komunikācijas un teritorija

Ārējo komunikāciju pieslēgšana un teritorijas labiekārtošana

04

Nodošana

Mājas nodošana ekspluatācijā

05

Biežāk uzdotie jautājumi

Lai pasūtītu māju nepieciešams iegādāties zemes gabalu un pieteikties konsultācijai. Ja vēl nav izdevies atrasts zemes gabalu, tad neuztraucieties, to varam palīdzēt piemeklēt.

10% pie rezervācijas līguma noslēgšanas
40% pirms pamatu izbūves un mājas ražošanas uzsākšanas
30% pirms mājas montāžas
20% pēc mājas montāžas un iekšējo apdares darbu pabeigšanas

Mūsu ražotajām un būvētajām mājām dodam 10 gadu garantiju konstrukcijām un 36 mēnešu garantiju apdarei.

Būvprojekta piesaiste, saskaņošana būvvaldē un būvniecība var aizņemt līdz 5 mēnešiem

Ēkas kvalitāte tiek pārbaudīta katrā būvniecības etapā. Sākot ar zemes darbiem, līdz sienu krāsojumam. Pēc ēkas konstrukciju montāžas un noblīvēšanas, katrai ēkai tiek veikts blīvuma tests.

Ēkas blīvuma testa rezultāts mūsu būvētajām mājām tiek sasniegts labāks, kā pasīvajās mājas standartā noteikts. Tas ir zem 0.6 gaisa apmaiņas vienībām pie 50Pa spiediena.

Uzziniet vairāk, sazinoties ar mums!

Kā mums labāk ar jums sazināties?

WoodHC komanda